1. Introduction
After finished the H-beam assembling
process, H-beam automatic SAW welding is required. LHC single cantilever type
is equipped for H-beam automatic production line; while, it also can work
individually. It adopts A.C. variable frequency control to realize back and
forth welding. It has stable and reliable working and simple and convenient
operation. Special designed arc-guiding rack can satisfy the welding
requirements of small H-beam and star/cross beam.
2. Main Parameters
|
Model
|
LHC
|
|
Rail span mm
|
1150
|
|
Controller position
|
Side
|
|
Web height mm
|
160—2000
|
|
Flange width mm
|
140—800
|
|
Job length mm
|
4000—15000
|
|
Welding speed mm/min
|
240—2400
|
|
Machine power kW
|
4.6 (without welding power)
|
|
Power supply
|
AC380V, 50HZ, 3P or tailor made
|
|
Above are our standard models and parameters, and it can be
designed and manufactured on request.
|
*We reserve the right to alter
specifications without prior notice.
3. Main features
The standard models of our H-beam automatic
welding machine have the following features:
Robust all steel fabrication with stable structure and good
rigidity, and no deformation after long time using;
Single welding head which is more flexible;
American Lincoln DC-1000,NA-3S SAW welding system or Chinese famous
brand;
With flux feeding and recovery machine;
It can weld star/cross beam by changing the arc-guiding device;
A.C. variable frequency control;
Back and forth welding to improve efficiency greatly;
Heat treatment to main welding parts
after welding; sand blasting treatment to main welding parts before painting;
All motion parts have lubrication system;
Main electric elements are ABB/Siemens brands;
Lifting lug;
Standard color:
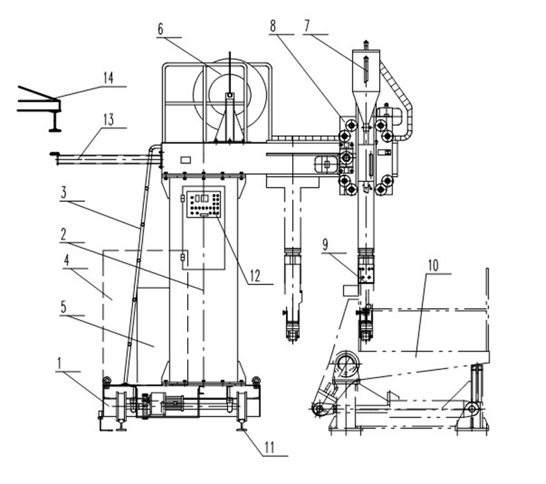
4. Structure drawing

5. Reference photo

|