1. Introduction
It is special used for straightening the
deformation of welded H-beam, which is divided into Mechanical type and
Hydraulic type. Hydraulic type has larger straightening capacity and high
degree of automation, suitable for flange thickness more than 40mm.
Straightening rollers and main transmission roller adopt quality alloy steel,
which are processed with heat treatment for a long life.
2. Main Parameters
|
Type
|
Hydraulic type
|
|
Model
|
YTJ-40
|
YTJ-60
|
YTJ-80
|
|
Flange
thickness mm
|
≦40
|
≦60
|
≦80
|
|
Flange tensile
strength Mpa
|
600
|
600
|
600
|
|
Flange width mm
|
200—800
|
200—800
|
300—1000
|
|
Straightening
speed mm/min
|
6
|
6.5
|
6
|
|
Machine power
kW
|
13.2
|
41.4
|
44
|
|
Size of web
height mm
|
≧380
|
≧350
|
≧350
|
|
Power supply
|
AC380V, 50HZ, 3P or tailor made
|
|
Above are our
standard models and parameters, and it can be designed and manufactured on
request.
|
*We reserve the right to alter
specifications without prior notice.
3. Main features
The standard models of our hydraulic type H-beam
flange straightening machine have the following features:
Robust all steel fabrication with stable structure and good
rigidity, and no deformation after long time using;
All the straightening rollers are made of quality alloy steel
(35CrMo), gone through advanced heat-treatment;
Input and output 11m elevation type powered conveyor each;
Near operation box for easy operation;
Heat treatment to main welding parts
after welding; sand blasting treatment to main welding parts before painting;
All motion parts have lubrication system;
Main electric elements are ABB/Siemens brands;
Lifting lug;
Standard color:
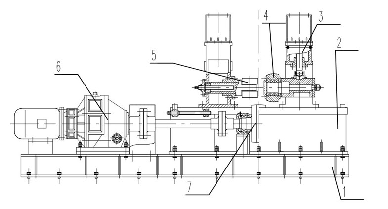
4. Structure drawing

5. Reference photo


 |