1. Introduction
H-beam assembly machine can realize the web
and flange assembly by automatic CO2 tack welding. Web and flange centering and
clamping units fix the beam first, and then the PLC controlled CO2 welders weld
the beam. Main machine is driven by
A.C. inverter, stable and reliable. Upper press-beam is guided through left and
right four rails, ensuring steady clamping of long time use.
2. Main Parameters
|
Model
|
Z15
|
Z18
|
Z20
|
Z25
|
Z30
|
|
Suitable web height mm
|
200—1500
|
200—1800
|
200—2000
|
200—2500
|
200—3000
|
|
Suitable web thickness mm
|
6--50
|
5—50
|
6—50
|
6—50
|
6—50
|
|
Suitable flange width
|
200—800
|
200—800
|
200—800
|
200—1000
|
200—1000
|
|
Suitable work-piece length mm
|
4000—15000 or on request
|
|
Assembly speed mm/min
|
0.5—6m/min
|
|
Machine power kW
|
11.7
|
|
Power supply
|
AC380V, 50HZ, 3P or tailor made
|
|
Above are our standard models and parameters, and it can be
designed and manufactured on request.
|
*We reserve the right to alter
specifications without prior notice.
3. Main features
The standard models of our H-beam automatic
assembling machine have the following features:
Robust all steel fabrication with stable structure and good
rigidity, and no deformation after long time using;
Synchronous clamping and centering system for web and flange;
Automatic tack welding system;
Tangshan Panasonic KRII-350 CO2 welding system;
Japan Mitsubishi PLC controller;
Separate motor for main machine and driving conveyors;
Heat treatment to main welding parts
after welding; sand blasting treatment to main welding parts before painting;
All motion parts have lubrication system;
Main electric elements are ABB/Siemens brands;
Lifting lug;
Standard color:
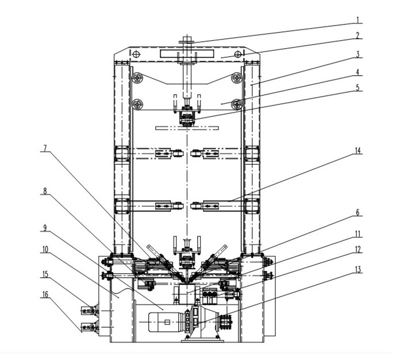
4. Structure drawing

5. Reference photo





|